Madinty Apartment

Overcoming Restriction 

and Enhancing Space

When the client contacted us, she expressed her desire to keep the existing unit designs without alterations. The problem was that certain details of this design were rejected by the Engineering Authority during the permit issuance process.We had to follow the Authority’s guidelines while maintaining the cherished aspects of the original design.

Another challenge emerged while we were discussing design with our client. She made it clear that she used to live in a house that was 3 times bigger than this one. This motivated us to create an illusion of spaciousness, enhancing the layout to look closer to the environment they used to live in.

Reception

Kitchen&Corridor

In our client’s original design, submitted by another company, the kitchen was the main reason for the rejection. Moving the kitchen to the reception area was not permitted as per the compound’s regulations, yet the client wanted a spacious, open kitchen.So, we kept the kitchen in its original location while opening it up to adjacent spaces, and we created a harmonious connection to the main corridor.

Master Bedroom

Our client wanted to make the master bedroom bigger by adding the area of the exterior terrace, while keeping in mind the compound’s regulations regarding the exterior facade of the building. She also wanted to enlarge the master bathroom and add a small dressing area.

Our client wanted to make the master bedroom bigger by adding the area of the exterior terrace, while keeping in mind the compound’s regulations regarding the exterior facade of the building. She also wanted to enlarge the master bathroom and add a small dressing area.

 Main Bathroom

The bathroom area was expanded by repositioning the fixtures and fittings, allowing for more internal movement space.

 Main Bathroom

Hana’s bedroom

The boy’s bedroom

The Terrace

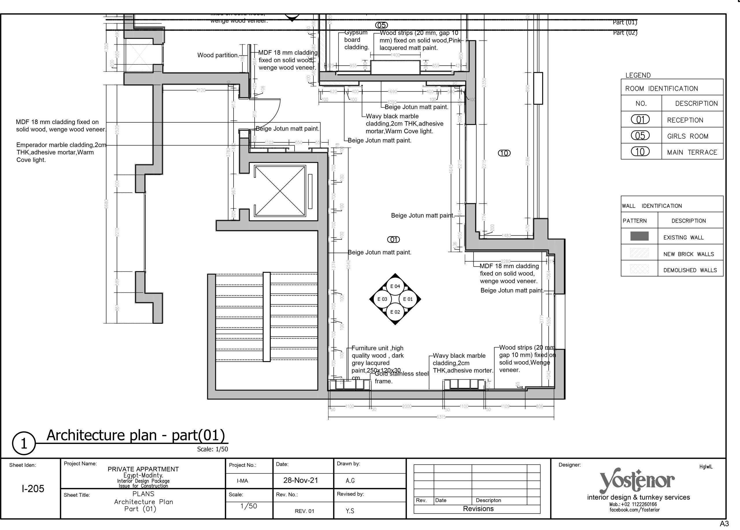
Samples of working drawings to this project