Heathers Pharmacy
A Renovation for more Profit
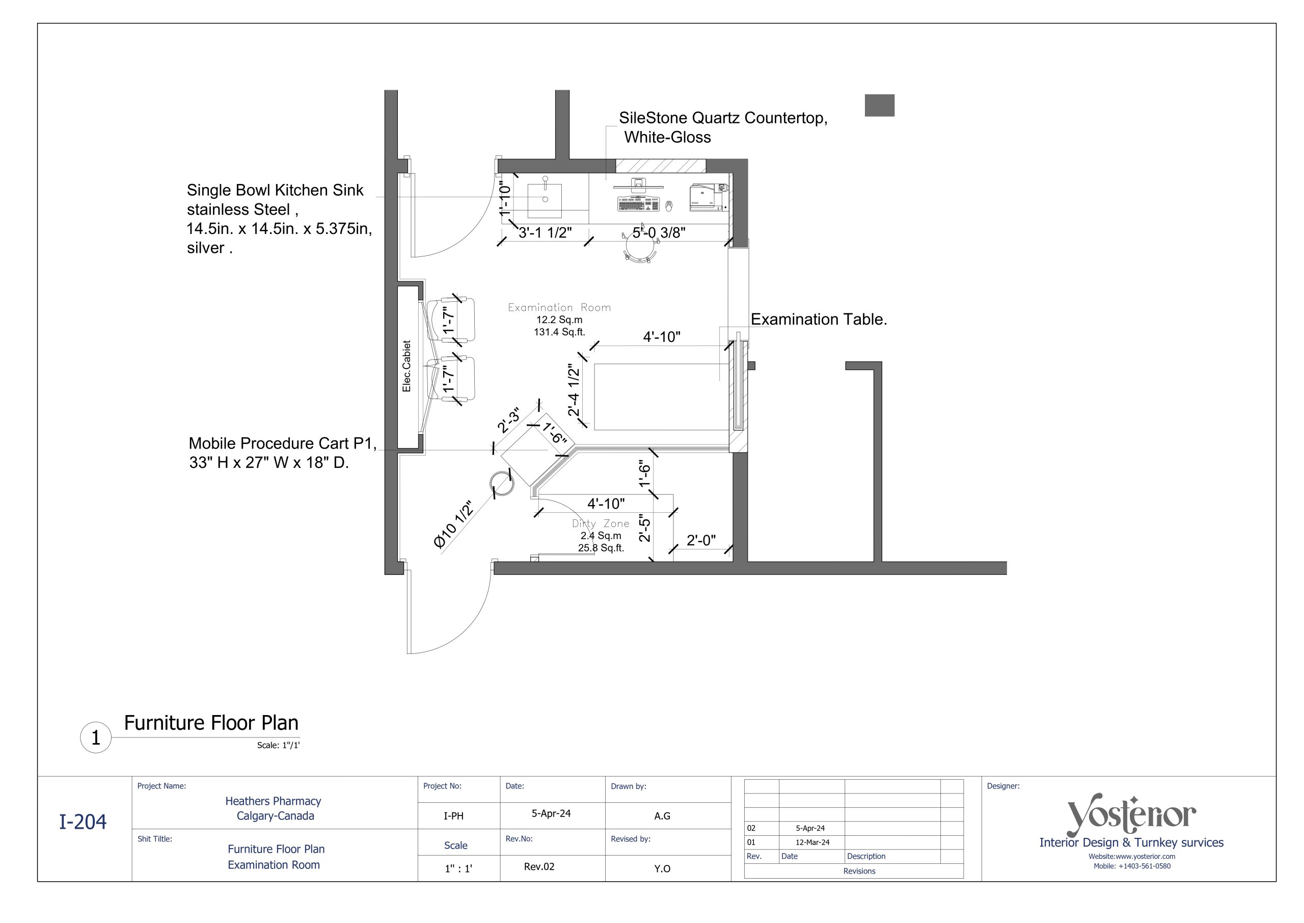
Our client wanted to renovate her staff room to convert it to an examination room to make more profit to her pharmacy, she wanted also to add a unique look to her interior pharmacy and add some idea to mural on the walls.
we offer to her many options to redesign the staff room and she chose one option to continue based on it, we offered for her many ideas to enhance her interior look to the shelves and the walls.Now we are in the process of grapping the permits from City of Calgary to start our execution process .
First, we Studied deeply the doctor’s needs in this room and we revised the crireria of any examination roon inside Canada.we offered to her very detailed package with working dtawings and schedules of specs.















